Umbau Chesa Lazzarini, Crappun, Samedan
| Bearbeitung | 2014–2015 bei MIERTA & KURT LAZZARINI ARCHITEKTEN |
| Programm | Umbau |
| Projektstatus | Realisiert |
| Ort | Crappun, 7503 Samedan |
| Mitarbeit bei | Mierta & Kurt Lazzarini Architekten, Samedan |
| Position | Entwurfsarchitekt |
| Leistungen | Entwurf, Detailplanung |
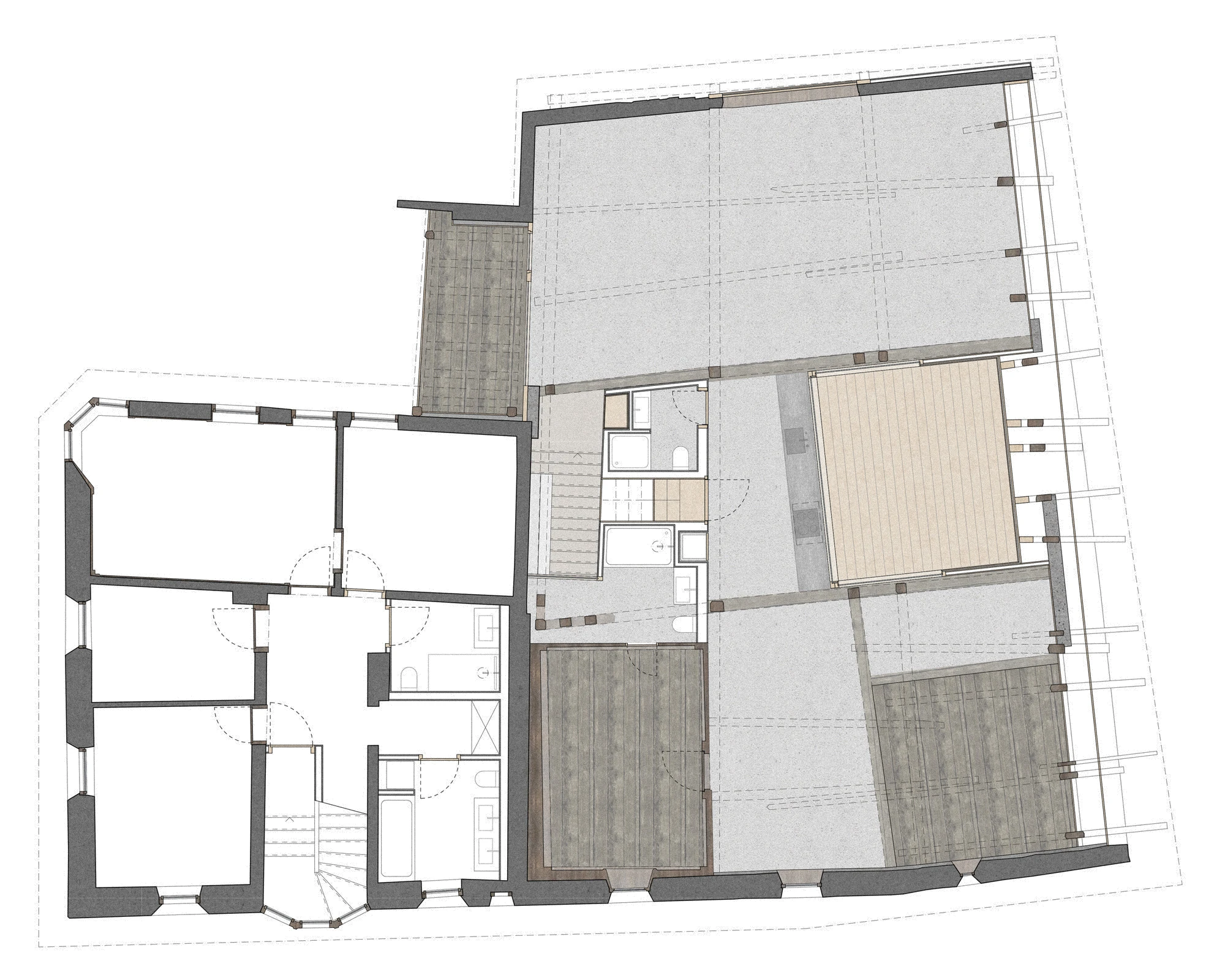
Einige Patrizierhäuser im Engadin erzählen mit ihrer jahrhundertealten Materialsubstanz (Stein, Holz, Mörtel) von der Geschichte und den Lebensformen von Generationen von Familien. Im guten Fall erweitert und bereichert jede Generation das bauliche Erbe. Der Dachstock der Chesa Lazzarini mit seinen uralten schwarzen Holzbalken, Pfetten und Sparren diente früher als ärmliche, unbeheizte Schlafstätte für die Dienstboten und als Lagerraum.
Um die ursprüngliche, starke Atmosphäre der Konstruktion zu erhalten, mussten wir eine zweite, verdeckte Tragkonstruktion über dem bestehenden Dachstuhl errichten. Die ursprüngliche Konstruktion blieb selbsttragend und in ihrer Form präsent, während wir in den frei gewordenen Zwischen- und Hohlräumen Platz für die notwendigen Funktionen einer modernen 3,5-Zimmer-Wohnung mit Dachterrasse schufen.