Hatecke, Bar-Boucherie, Plaz 86, Zernez
| Bearbeitung | 2018–2019 bei BEAT CONSONI AG |
| Programm | Umbau / Ladenausbau |
| Projektstatus | Realisiert |
| Ort | Plaz 86, 7530 Zernez |
| Mitarbeit bei | Beat Consoni AG, St.Gallen |
| Position | Projektleitung |
| Leistungen | Planung und Kostenkontrolle |
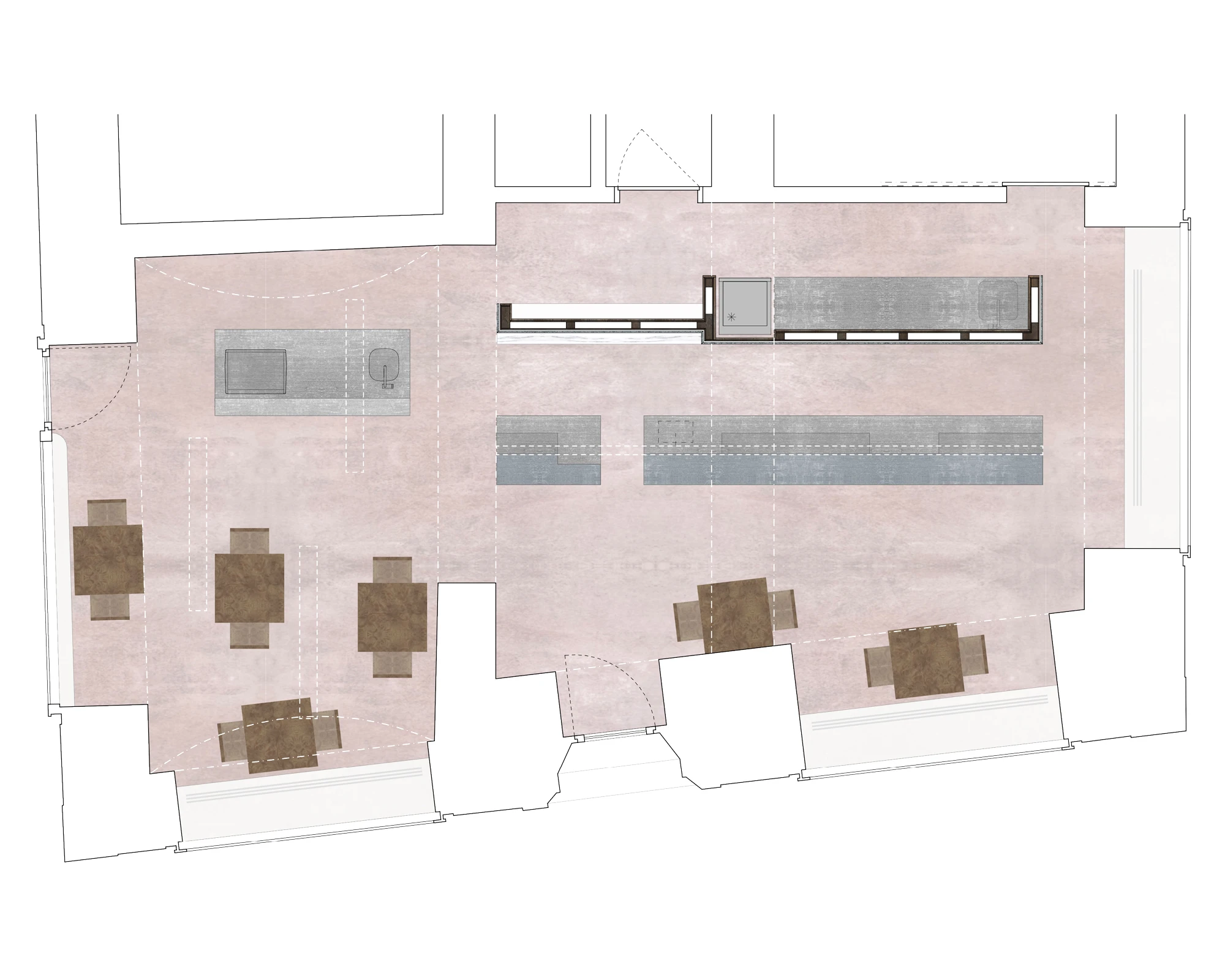
Beat Consoni hat die Metzgerei Hatecke in Zernez 2011 ausgebaut. Der damalige Boutique-Laden wurde auf rund 20 Quadratmeter betrieben und bediente vor allem die lokale Stammkundschaft während des ganzen Jahres. Als das neue Raiffeisencenter erweitert wurde, konnte die Familie Hatecke die Ladenfläche vergrössern und mit einem Bistro erweitern lassen.
In den vorgegebenen, verwinkelten Raum haben wir eine freistehende, subtil proportionierte «Wand» gestellt, die mit dezenter Eigenständigkeit die verschiedenen Tätigkeiten und Abläufe im Laden organisiert. Das massive Raummöbel integriert eine kleine Vorbereitungsküche und bildet mit seiner Verkleidung aus Lasa-Marmor eine zauberhafte Kulisse für die edle Handarbeit der Metzger.